Страница 1 из 3
закипел
Добавлено: 02 июн 2012, 01:29
Vision
Доброго всем времени суток,прошу сильно не материть а лучше помочь советом

в общем день прошел удачно приехал небо было ясным пели птички
ну и решил я смотаться в магаз за маслом для коробки так как нужно чуток подлить до уровня

значит купил жижу,подъехал на ровную парковку подлил масла закрыл капот,трогаюсь и глядь дымок повалил из под капота

ну думаю масло то тут причем

глядь под капот и понимаю что кипим

еще и стрелка зашкалила +пропеллеры молчат! весело короче.заглушил мотор,пробую принудительно включить карлсоны получилось тока замкнув реле малой скорости.стоим курим материм какието датчики и их мать антифриз почти весь свалил,руками создаю эффект помпы-сжимая шланги и обжигая руки

жесть!остудил доехал до дома,померил сопротивление датчика температуры ОЖ=680 -нихрена не понял сколько там надо включил зажигание померял вольтаж на клеммах разъема датчика 4,8в и трещит клапан хх когда меряешь напряжение датчика ОЖ

дальше перешел к пиву и забил до завтра на датчики и пропеллеры

где посоветуете копать

заранее благодарен всем откликнувшимся

Re: закипел
Добавлено: 02 июн 2012, 02:00
Dmitry171
а кто то обещал редко заходить к нам
проблема перегрева она как правило лежит в плоскости термостата и вентилятора или датчика температуры... начинай с вентилятора - кинь на него питание с акумулятора напрямую - если он закрутился.. то значит переходим к датчику температуры и релюшки включения вентилятора.. параллельно можно поменять термостат - даже если это и не он - хуже не будет

Re: закипел
Добавлено: 02 июн 2012, 02:42
Николай Пименов
Термостат-то как раз проверяется влет, он работает абсолютно так же как на всех авто.
Датчик: 680 ом при комнатной температуре, теперь опускаем в чашку с чуть остывшим кипятком и смотрим изменения. Ну и дальше если всё меняется - толкьо силовые цепи собственно включения вентака. Согласно схемы как говорится.
Про масло: марку не перепутал? Хруслер очень любит свою особую АТФ (всякие 4+, 6+ и т.п., по возрасту твоему канает 4+), а от обычного декстрона ему плохеет очень.
Re: закипел
Добавлено: 02 июн 2012, 10:16
Vision
благодарю за советы,пошел мучить машину.
масло заливаю строго атф4+ мопар! хотя и декстрон2 предлагали залить(типа какая разница тоже ведь для коробки)
инет только дома,потому и посещаю часто-редко когда бываю дома.
Re: закипел
Добавлено: 02 июн 2012, 18:59
Vision
сегодня промыл спец жижей всю систему охлаждения грязи ноль,термостат новый и рабочий,крышка расширительного бачка новая радиатор новый помпа и ремень грм тоже новые.датчик температуры меняет сопротивление при нагреве охлаждении на всякий случай заказал новый,проверил все реле под капотом,предохранители.я так понимаю косяк где то в проводке.кстати с утра при запуске включился вент,через30 секунд выключился, тоже не понятно чего это он
Re: закипел
Добавлено: 02 июн 2012, 21:04
Николай Пименов
Это пусковой тест, не обращай внимания.
Не столько проводка, сколько блок управления двигателем+силовой модуль. Но вон вначале включает - значит, запросто может инфа от датчика не долетать до мозга.
Не знаю как у Хруслера, а у Форда есть хороший тест: снимаешь разъем с датчика - вентилятор включается на полную. Так тестируется что блок управления вообще "видит" датчик.
Re: закипел
Добавлено: 03 июн 2012, 00:54
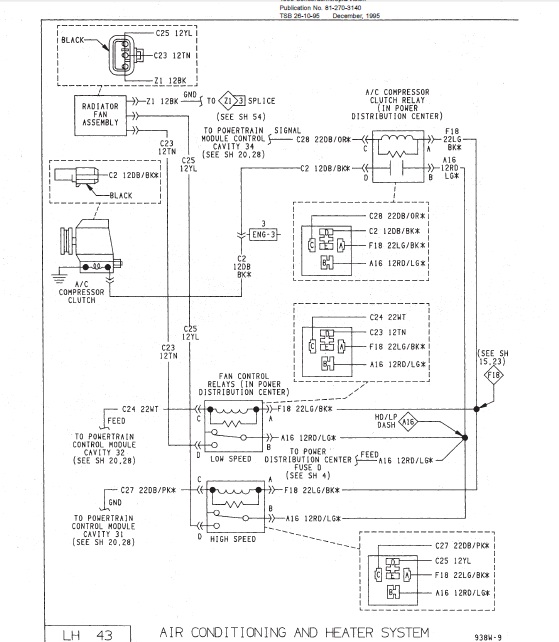
alexauto2005
Судя по схеме подключения карлсонов,то я бы сначала проверил предохранитель №18 - 10А ,он подает питание на обмотки релюшек включения вентиляторов.
Схема прилагается.
Re: закипел
Добавлено: 03 июн 2012, 21:33
Vision
Всем огромное спасибо за оказанную помощь

все протестил,зачистил и побрызгал контактной смазкой все соединения и прочие подозрительные места и поставил на прикол

предварительно умирает датчик температуры и возможно моторчик хх.заказал так как в наличии нет,придется недельку на пешеходнотрамвайнотроллейбусном форуме ошиваться

Re: закипел
Добавлено: 03 июн 2012, 21:36
Николай Пименов
Моторчик ХХ к кипелову отношения не имеет.
Re: закипел
Добавлено: 03 июн 2012, 21:45
Vision
Николай Пименов писал(а):Моторчик ХХ к кипелову отношения не имеет.
(это мне машинка в нагрузку неисправностей добавляет) обороты плавать начали

Re: закипел
Добавлено: 03 июн 2012, 22:41
Николай Пименов
Ну смотри, может и не он быть.
Re: закипел
Добавлено: 06 июн 2012, 17:00
Vision
Вчера разобрал вентилятор который двухскоростной и понял почему он не сработал при перегреве

дело оказалось в щетках,точнее износа и отсутствия одной из трех!щетка которая износилась до минимума благополучно зацепилась за движущиеся детали моторчика,предварительно пригласив на прогулку пружину ее прижимающую

(странно как он вообще хоть и на первой скорости,крутился при подключении от АКБ напрямую

)
дальше пришлось сделать грустную мину и призвать на помощь колхоз и вентиль от чпокуса

чуток мучений смекалки и нецензурной брани сделали свое дело,и у нас снова два рабочих вентилятора
А вот мораль что за щетками и не только нужно периодически следить и заменять чтоб не плодить похожих тем

признайтесь кто делал ревизию в этом узле?

:

- щеточный узел
машин еще не вылечился все еще жду датчик температуры ОЖ и еще вторую неделю

кучу деталей по ходовой никак не дождусь
Re: закипел
Добавлено: 06 июн 2012, 17:12
alexauto2005
Сомневаюсь что бы кто-то делал ревизию щеток.
Я себе от "таза" карлсона поставил,а именно от волги.
Теперь одна скорость,но работает и не кипит.
Re: закипел
Добавлено: 06 июн 2012, 17:24
Николай Пименов
Ну уж замена щеток настолько простая операция, что даже не знаю, колхоз потребуется только в подборе по размеру и опиливанию где надо. Ну или если коллектор угроблен. А вот неродной вентиль не есть гуд - производительность-то не та...
Re: закипел
Добавлено: 06 июн 2012, 18:35
Vision
Николай Пименов писал(а):Ну уж замена щеток настолько простая операция, что даже не знаю, колхоз потребуется только в подборе по размеру и опиливанию где надо. Ну или если коллектор угроблен. А вот неродной вентиль не есть гуд - производительность-то не та...
да там пружинку с щекой перемололо в пыль,боюсь вот вот кирдык придет

,поэтому решил другой моторчик ставить

менять буду скорее всего полностью в сборе,но не скоро
