Упала *опа
- El'Dorado
- Ветеран клуба АмАвто
- Сообщения: 8051
- Зарегистрирован: 11 окт 2006, 17:23
- Откуда: Москва. ЮАО
- Контактная информация:
Re: Упала *опа
и так..
компрессор работает.. подушки живые..
разъем херовый на компрессоре.. надеюсь что засада в этом.. если нет, остается самое сложное - где-то глюк в проводке..
компрессор работает.. подушки живые..
разъем херовый на компрессоре.. надеюсь что засада в этом.. если нет, остается самое сложное - где-то глюк в проводке..
SAAB :shock:
JeeP WK2 CRD
JeeP WK2 CRD
- Николай Пименов
- Ветеран клуба АмАвто
- Сообщения: 28351
- Зарегистрирован: 20 окт 2007, 23:03
- Откуда: Самара
- Николай Пименов
- Ветеран клуба АмАвто
- Сообщения: 28351
- Зарегистрирован: 20 окт 2007, 23:03
- Откуда: Самара
- El'Dorado
- Ветеран клуба АмАвто
- Сообщения: 8051
- Зарегистрирован: 11 окт 2006, 17:23
- Откуда: Москва. ЮАО
- Контактная информация:
Re: Упала *опа
будем надеятся на лучшее..
подвеску накачал пока, выключатель вырубил.. чтобы ехать можно было...
подвеску накачал пока, выключатель вырубил.. чтобы ехать можно было...
SAAB :shock:
JeeP WK2 CRD
JeeP WK2 CRD
- El'Dorado
- Ветеран клуба АмАвто
- Сообщения: 8051
- Зарегистрирован: 11 окт 2006, 17:23
- Откуда: Москва. ЮАО
- Контактная информация:
Re: Упала *опа
Подскажите номерок соленоида, который передний (на раме спереди стоит)..
И вот еще.. Нужно реле включения компрессора.. Я так понимаю оно такое же как и на марк 8 вроде... Может есть у кого?
И вот еще.. Нужно реле включения компрессора.. Я так понимаю оно такое же как и на марк 8 вроде... Может есть у кого?
SAAB :shock:
JeeP WK2 CRD
JeeP WK2 CRD
- Николай Пименов
- Ветеран клуба АмАвто
- Сообщения: 28351
- Зарегистрирован: 20 окт 2007, 23:03
- Откуда: Самара
Re: Упала *опа
Оно же на АБС силовое реле, если как на Марк. У Сашко?
Сейчас это клапан 1L1Z5311AA. Есть в Москау у Юса-Авто точно (2,2 круб хотят, если через 15 дней - дешевле)
Сейчас это клапан 1L1Z5311AA. Есть в Москау у Юса-Авто точно (2,2 круб хотят, если через 15 дней - дешевле)
- El'Dorado
- Ветеран клуба АмАвто
- Сообщения: 8051
- Зарегистрирован: 11 окт 2006, 17:23
- Откуда: Москва. ЮАО
- Контактная информация:
Re: Упала *опа
Поставил вчера эту релюшку с другово гатора.. Заработало... а сегодня опять перестало..
Вот я думаю, а можно ли обычную силовую релюшку туда вколхозить?
ЗЫ. Смотрю в академии соленоид с другим номером F5OZ 5311-CA
А реле вот такое F3LZ 2C013-B вроде
Вот я думаю, а можно ли обычную силовую релюшку туда вколхозить?
ЗЫ. Смотрю в академии соленоид с другим номером F5OZ 5311-CA
А реле вот такое F3LZ 2C013-B вроде
SAAB :shock:
JeeP WK2 CRD
JeeP WK2 CRD
- Николай Пименов
- Ветеран клуба АмАвто
- Сообщения: 28351
- Зарегистрирован: 20 окт 2007, 23:03
- Откуда: Самара
Re: Упала *опа
Если Академики смогли его найти - молодцы. Просто с 99 года вот то, что я написал.
На реле силовое писать код смысла особо нет - силовое реле оно и в африке силовое реле.
То, что оно регулярно горит, говорит только о том, что что-то не так дальше - или в проводке, или в компрессоре. Причем недостаточно "не так" чтобы горел предохранитель
Ну или как вариант - просто бракованное реле (то, второе), не пережившее переставку.
Силовое реле можно любое, что выдержит ток 50 ампер пусковой мотора - особой скорости срабатывания там не требуется.
На реле силовое писать код смысла особо нет - силовое реле оно и в африке силовое реле.
То, что оно регулярно горит, говорит только о том, что что-то не так дальше - или в проводке, или в компрессоре. Причем недостаточно "не так" чтобы горел предохранитель
Силовое реле можно любое, что выдержит ток 50 ампер пусковой мотора - особой скорости срабатывания там не требуется.
Re: Упала *опа
реле нынче дефицит и недешево
Lincoln Mark VIII '96 black
GMC Envoy SLT '02 black
Volvo XC90 V8 '08 blue
GMC Envoy SLT '02 black
Volvo XC90 V8 '08 blue
- Николай Пименов
- Ветеран клуба АмАвто
- Сообщения: 28351
- Зарегистрирован: 20 окт 2007, 23:03
- Откуда: Самара
Re: Упала *опа
А почему дефицит-то? Думаете, на Нэви-3 какое-то принципиально другое реле? То же самое!
Недешево - это запросто.
Недешево - это запросто.
- El'Dorado
- Ветеран клуба АмАвто
- Сообщения: 8051
- Зарегистрирован: 11 окт 2006, 17:23
- Откуда: Москва. ЮАО
- Контактная информация:
Re: Упала *опа
а рпспиновку проводов куда какой?
я так понимаю что там два на массе, один управление от мозгов и один плюс на компрессор?
я так понимаю что там два на массе, один управление от мозгов и один плюс на компрессор?
SAAB :shock:
JeeP WK2 CRD
JeeP WK2 CRD
- Николай Пименов
- Ветеран клуба АмАвто
- Сообщения: 28351
- Зарегистрирован: 20 окт 2007, 23:03
- Откуда: Самара
Re: Упала *опа
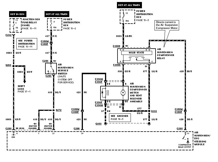
Не, один на плюс с предохранителя компрессора, один выход на компрессор, один на массу и один управление от мозга.
КартинкО
КартинкО
- El'Dorado
- Ветеран клуба АмАвто
- Сообщения: 8051
- Зарегистрирован: 11 окт 2006, 17:23
- Откуда: Москва. ЮАО
- Контактная информация:
Re: Упала *опа
Ребят, а Suncore это нормально? компрессор наелся похоже..
Думаю, можт сразу комплект купить http://www.ebay.com/itm/Suspension-Air- ... 1e62f2217e
И в рашу шипят.. только получать как и где не понятно..
Думаю, можт сразу комплект купить http://www.ebay.com/itm/Suspension-Air- ... 1e62f2217e
И в рашу шипят.. только получать как и где не понятно..
SAAB :shock:
JeeP WK2 CRD
JeeP WK2 CRD
Re: Упала *опа
по амортам не скажу, не знаю, подушки, соленоиды, компрессора, осушители---нормально, вполне приличное качество, на живых примерах, если чоEl'Dorado писал(а):Ребят, а Suncore это нормально?
какой адрес укажешь при покупке, там и получишьEl'Dorado писал(а):И в рашу шипят.. только получать как и где не понятно..
З.Ы. У санкора есть русскоязычный хелп по мылу svet@suncoreindustries.com напиши письмо, они нормально отвечают на все вопросы
Что наша жизнь? Игра!


