Webasto AirTop 2000 ST
Webasto AirTop 2000 ST
Нужна помощь в подключении. Схемы здесь http://www.webasto-msk.ru/Particles/art_41/
Нихрена в них не понял. Жгуты по салону уже проложил. Установка с комбинированным прибором. Вот на рисунке, к примеру, клемма 58, 15, 30, 31 это что? на что эти провода запитывать?
Нихрена в них не понял. Жгуты по салону уже проложил. Установка с комбинированным прибором. Вот на рисунке, к примеру, клемма 58, 15, 30, 31 это что? на что эти провода запитывать?
-
Stranger16rus
Re: Webasto AirTop 2000 ST
На подходе к Воронежу есть контора, которая ставит вэбасты и фены в т.ч. на грузовики. В рацию спроси дальнобоев - подскажут точнее где искать.
Там все от и до скажут. Они собаку съели на этом.
Или искать профильный форум, Сань. Мне ставил оф дилер фольксвагена.
Там все от и до скажут. Они собаку съели на этом.
Или искать профильный форум, Сань. Мне ставил оф дилер фольксвагена.
- CyberSergey
- Ветеран клуба АмАвто
- Сообщения: 2231
- Зарегистрирован: 09 авг 2006, 16:47
- Откуда: Латвия , Рига
Re: Webasto AirTop 2000 ST
1. "клемма15" обычно обозначается цепь, запитываемая от замка зажигания при включении зажигания. Цифру 15 можно обнаружить например на самом замке.
2. "клемма 50" - цепь включения стартера.
3. "клемма 30" - питающая цепь. То есть цепь , связанная непосредственно с источниками - АКБ и генератором.
Могут быть дублирующие клеммы 30/1 30/2 15/1 50/1. Это значит что эти цепи включаются синхронно, а в выключенном состоянии не имеют связи между собой. Например кроме 15 может иметь место 15/1 или 15/2 и может задействоваться для электробензонасоса итп.
4. "клемма 31" - масса авто.
2. "клемма 50" - цепь включения стартера.
3. "клемма 30" - питающая цепь. То есть цепь , связанная непосредственно с источниками - АКБ и генератором.
Могут быть дублирующие клеммы 30/1 30/2 15/1 50/1. Это значит что эти цепи включаются синхронно, а в выключенном состоянии не имеют связи между собой. Например кроме 15 может иметь место 15/1 или 15/2 и может задействоваться для электробензонасоса итп.
4. "клемма 31" - масса авто.
Последний раз редактировалось CyberSergey 21 мар 2014, 13:11, всего редактировалось 3 раза.
= Citroen Jumpy 1.6 tdi cargo (2007) =
= Chevrolet TransSport 3.4 (1999) =
= Mitsubishi Galant 2.0 GLSi (1989) =
= 2 Мотороллера "Муравей" 0.200 (н.д.) =
= Мотороллер Вятка-Электрон 0.150 (1979) =
= Chevrolet TransSport 3.4 (1999) =
= Mitsubishi Galant 2.0 GLSi (1989) =
= 2 Мотороллера "Муравей" 0.200 (н.д.) =
= Мотороллер Вятка-Электрон 0.150 (1979) =
- CyberSergey
- Ветеран клуба АмАвто
- Сообщения: 2231
- Зарегистрирован: 09 авг 2006, 16:47
- Откуда: Латвия , Рига
Re: Webasto AirTop 2000 ST
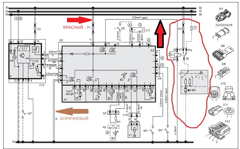
рис. 30: Электрическая схема автономного отопителя Webasto Air Top 2000 ST, 12 В/24 В с органом управления и вентилятором автомобиля, пояснения см. на стр.104 и 105
Судя по этой схеме - 58 связана с вентилятором печки авто.
Судя по этой схеме - 58 связана с вентилятором печки авто.
= Citroen Jumpy 1.6 tdi cargo (2007) =
= Chevrolet TransSport 3.4 (1999) =
= Mitsubishi Galant 2.0 GLSi (1989) =
= 2 Мотороллера "Муравей" 0.200 (н.д.) =
= Мотороллер Вятка-Электрон 0.150 (1979) =
= Chevrolet TransSport 3.4 (1999) =
= Mitsubishi Galant 2.0 GLSi (1989) =
= 2 Мотороллера "Муравей" 0.200 (н.д.) =
= Мотороллер Вятка-Электрон 0.150 (1979) =
Re: Webasto AirTop 2000 ST
а с какой целью?CyberSergey писал(а):Судя по этой схеме - 58 связана с вентилятором печки авто.
-
Stranger16rus
Re: Webasto AirTop 2000 ST
У меня так же было. Включается штатаная вентиляция (эл. двигатель) и тепло разгоняется по системе. Я попросил не цеплять - жрет много аккума.
Re: Webasto AirTop 2000 ST
Вот и мне оно не надо, обогрев не заведен в штатные воздуховоды, нужен для предпускового прогрева салона, тупо будет дуть из под заднего дивана.Stranger16rus писал(а):У меня так же было. Включается штатаная вентиляция (эл. двигатель) и тепло разгоняется по системе. Я попросил не цеплять - жрет много аккума.
Re: Webasto AirTop 2000 ST
Кроме тех проводов что на схеме есть еще несколько которые явно нужно к чему-то подцепить. Зафотаю- скажу цвета.
Re: Webasto AirTop 2000 ST
там 58 а не 50, точно к цепи стартера? какую функцию будет выполнять это подключение?CyberSergey писал(а):"клемма 50"
- CyberSergey
- Ветеран клуба АмАвто
- Сообщения: 2231
- Зарегистрирован: 09 авг 2006, 16:47
- Откуда: Латвия , Рига
Re: Webasto AirTop 2000 ST
Про 50 клемму я упомянул просто как об одной из списка "стандартных" - общепринятых. (Вдруг пригодится на будущее). В твоём случае она не упоминается.
= Кроме тех проводов что на схеме есть еще несколько которые явно нужно к чему-то подцепить. = Ещё не фотал?
= Кроме тех проводов что на схеме есть еще несколько которые явно нужно к чему-то подцепить. = Ещё не фотал?
= Citroen Jumpy 1.6 tdi cargo (2007) =
= Chevrolet TransSport 3.4 (1999) =
= Mitsubishi Galant 2.0 GLSi (1989) =
= 2 Мотороллера "Муравей" 0.200 (н.д.) =
= Мотороллер Вятка-Электрон 0.150 (1979) =
= Chevrolet TransSport 3.4 (1999) =
= Mitsubishi Galant 2.0 GLSi (1989) =
= 2 Мотороллера "Муравей" 0.200 (н.д.) =
= Мотороллер Вятка-Электрон 0.150 (1979) =
- CyberSergey
- Ветеран клуба АмАвто
- Сообщения: 2231
- Зарегистрирован: 09 авг 2006, 16:47
- Откуда: Латвия , Рига
Re: Webasto AirTop 2000 ST
58 клемма похоже это сигнал о включенных габаритах - при включении оных включается лампа освещения кнопок и дисплея таймера (Н5 на схеме).
Итак, если у тебя таймер (комбинированный прибор), то берём эту схему и вырезаем (не подключаем) то, то выделено красным. Это как раз управление вентилятором авто. Ты писал, что тебе это не нужно.
F1 , F2 - предохранители по 20 ампер.
Разбираюсь дальше, продолжение следует ...
Итак, если у тебя таймер (комбинированный прибор), то берём эту схему и вырезаем (не подключаем) то, то выделено красным. Это как раз управление вентилятором авто. Ты писал, что тебе это не нужно.
F1 , F2 - предохранители по 20 ампер.
Разбираюсь дальше, продолжение следует ...
Последний раз редактировалось CyberSergey 23 мар 2014, 20:36, всего редактировалось 2 раза.
= Citroen Jumpy 1.6 tdi cargo (2007) =
= Chevrolet TransSport 3.4 (1999) =
= Mitsubishi Galant 2.0 GLSi (1989) =
= 2 Мотороллера "Муравей" 0.200 (н.д.) =
= Мотороллер Вятка-Электрон 0.150 (1979) =
= Chevrolet TransSport 3.4 (1999) =
= Mitsubishi Galant 2.0 GLSi (1989) =
= 2 Мотороллера "Муравей" 0.200 (н.д.) =
= Мотороллер Вятка-Электрон 0.150 (1979) =
- CyberSergey
- Ветеран клуба АмАвто
- Сообщения: 2231
- Зарегистрирован: 09 авг 2006, 16:47
- Откуда: Латвия , Рига
Re: Webasto AirTop 2000 ST
Вот соответствие цветов проводов и их толщины в зависимости от обозначений на схеме.
= Citroen Jumpy 1.6 tdi cargo (2007) =
= Chevrolet TransSport 3.4 (1999) =
= Mitsubishi Galant 2.0 GLSi (1989) =
= 2 Мотороллера "Муравей" 0.200 (н.д.) =
= Мотороллер Вятка-Электрон 0.150 (1979) =
= Chevrolet TransSport 3.4 (1999) =
= Mitsubishi Galant 2.0 GLSi (1989) =
= 2 Мотороллера "Муравей" 0.200 (н.д.) =
= Мотороллер Вятка-Электрон 0.150 (1979) =
Re: Webasto AirTop 2000 ST
а я уже на цепь вкл стартера запаял))CyberSergey писал(а):58 клемма похоже это сигнал о включенных габаритах - при включении оных просто тускнеет дисплей таймера.
то есть к постоянному плюсу на замке зажигания подключаться нельзя?CyberSergey писал(а):клемма 30" - питающая цепь. То есть цепь , связанная непосредственно с источниками - АКБ и генератором.
Re: Webasto AirTop 2000 ST
Фотать не стал, темновато в гараже, ситуация такова,- все провода что на первом фото выходят из разъема который вставляется в комбинированный прибор управления обогревателем (далее КПО), с этого же разъема идет жгут на сам фен, от фена жгут идет снова к торпеде и заканчивается пятью хвостами которые нужно куда-то впаять:
1. красный (с колодкой под предохранитель 15А)
2. коричневый
3. серый
4. черный с красной полосой
5. фиолетовый
В потьмах мог ошибиться с расцветкой, но кажется так.
Еще, из разъема КПО кроме двух выше описанных жгутов выходит один отдельный проводок, белый с красной полосой.- ???
1. красный (с колодкой под предохранитель 15А)
2. коричневый
3. серый
4. черный с красной полосой
5. фиолетовый
В потьмах мог ошибиться с расцветкой, но кажется так.
Еще, из разъема КПО кроме двух выше описанных жгутов выходит один отдельный проводок, белый с красной полосой.- ???
- CyberSergey
- Ветеран клуба АмАвто
- Сообщения: 2231
- Зарегистрирован: 09 авг 2006, 16:47
- Откуда: Латвия , Рига
Re: Webasto AirTop 2000 ST
58 клемма - это сигнал о включенных габаритах - при включении оных включается лампа освещения кнопок и дисплея таймера (Н5 на схеме).
На прикреплённой схеме провода, указанные стрелками
красный - на клемму 30
коричневый - на 31 (масса)
чёрный с красной - включение вентилятора печки - ты вроде не хотел включать.
На прикреплённой схеме провода, указанные стрелками
красный - на клемму 30
коричневый - на 31 (масса)
чёрный с красной - включение вентилятора печки - ты вроде не хотел включать.
= Citroen Jumpy 1.6 tdi cargo (2007) =
= Chevrolet TransSport 3.4 (1999) =
= Mitsubishi Galant 2.0 GLSi (1989) =
= 2 Мотороллера "Муравей" 0.200 (н.д.) =
= Мотороллер Вятка-Электрон 0.150 (1979) =
= Chevrolet TransSport 3.4 (1999) =
= Mitsubishi Galant 2.0 GLSi (1989) =
= 2 Мотороллера "Муравей" 0.200 (н.д.) =
= Мотороллер Вятка-Электрон 0.150 (1979) =
